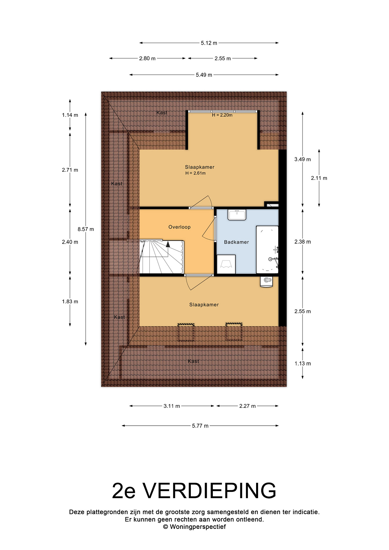
Hoef En Haag – Laurierkerspad 4 – Plattegrond 3