Hoef En Haag – Laurierkerspad 4

Vraagprijs - € 915.000,- k.k.

Moderne en duurzame twee-onder-een-kapwoning in het mooie Hoef en Haag!
Op een van de mooiste plekjes in Hoef en Haag staat deze moderne, strak afgewerkte twee-onder-een-kapwoning met garage en eigen oprit. De woning ligt aan een rustige straat met uitsluitend bestemmingsverkeer en iets verder terug van de weg, waardoor je hier optimaal geniet van rust en privacy.

Met een woonoppervlakte van maar liefst 178m² ervaar je hier een zee aan ruimte en woonplezier. Het karakteristieke jaren ’30 ontwerp combineert prachtig met het moderne comfort en de duurzaamheid van nu. Dankzij 10 zonnepanelen en energielabel A ben je bovendien helemaal klaar voor de toekomst.

Binnen word je verrast door een royale, lichte tuingerichte woonkamer met sfeervolle gashaard en een ruime woonkeuken. Daarnaast beschikt de woning over maar liefst vijf slaapkamers, twee badkamers en een prachtig aangelegde tuin met aangebouwde stenen garage en achterom. Dankzij de royale opzet en de aanwezigheid van twee badkamers is dit huis ideaal voor grote gezinnen of stellen die graag genieten van ruimte en comfort.

Op de eigen oprit is plek voor meerdere auto’s en een laadpaal voor het opladen van een elektrische auto. Bovendien is er voor de woning voldoende gratis parkeergelegenheid op de openbare weg.

Locatie:
Op een steenworp afstand van de woning vind je alle dagelijkse voorzieningen: een dorpswinkel, gezondheidscentrum, tandarts, cafetaria, basisschool, kinderopvang en een grote supermarkt. Ook diverse sportverenigingen liggen in de nabije omgeving. Voor ontspanning hoef je niet ver weg: binnen vijf minuten wandel je naar de recreatieplas van Everstein en in tien minuten sta je in de prachtige uiterwaarden van de Lek, waar je heerlijk kunt fietsen en wandelen.

Hoef en Haag is bovendien zeer centraal gelegen, vlak bij de uitvalswegen A27 en A2. Utrecht ligt op slechts een kwartier rijden, terwijl je Den Bosch en Amsterdam binnen circa 30 minuten bereikt. Ook met het openbaar vervoer is het dorp goed bereikbaar: er is een directe busverbinding naar busstation Vianen en Utrecht Centraal Station.

Begane grond:
Vanuit de ruime entree met garderobe, meterkast, toiletruimte met fontein en trapopgang bereik je de woonkamer.

De lichte en ruime tuingerichte woonkamer (ca. 68m²) is voorzien van een sfeervolle gashaard en grote raampartijen aan de achterzijde. De openslaande deuren zorgen voor een directe verbinding met de fraai aangelegde achtertuin, waardoor binnen en buiten naadloos in elkaar overlopen. Dankzij de royale lichtinval geniet je hier van een prettige, open sfeer, terwijl het elektrisch bedienbare zonnescherm op zonnige dagen voor extra comfort zorgt. Aan de voorzijde van de woning bevindt zich de ruime woonkeuken.

Keuken:
De moderne en smaakvolle keuken is uitgevoerd in zijdeglans wit en afgewerkt met een warm, donker natuurstenen werkblad. Dankzij de grote raampartijen aan zowel de voor- als zijkant van de woning is dit een heerlijk lichte ruimte.

De keuken is voorzien van hoogwaardige inbouwapparatuur, waaronder een 4-pits inductiekookplaat met geïntegreerde kookbladafzuiging (Miele), een combi-oven (Siemens), vaatwasser (Siemens), koel/vriescombinatie (Siemens) en een praktische Quooker voor direct kokend water. Verder is er volop bergruimte in de kasten en lades met softclose en zorgen sfeervolle inbouwspotjes voor een moderne uitstraling.

Extra bijzonder: vanuit de keuken (ca. 10m²) geniet je van een prachtig vrij uitzicht over de Meander én de aangrenzende speeltuin, ideaal voor gezinnen.

De begane grond is voorzien van houten vloerdelen met comfortabele vloerverwarming.

Tuin:
De achtertuin is werkelijk een plaatje en een waar verlengstuk van de woning! Direct aan de woning vind je een ruim zonneterras en achterin nog een tweede terras, zodat er altijd een perfect plekje is om te ontspannen in de zon of juist de schaduw. Het sierlijke gazon, de weelderige borders met bloemen, siergrassen en heesters en de sfeervolle pergola begroeid met druivenranken zorgen voor het permanente vakantiegevoel. Voor extra comfort is de achtergevel uitgerust met een elektrisch bedienbaar zonnescherm. Ook vind je hier een buitenkraan en een praktische achterom.
Kortom: een waanzinnige tuin waar je het hele jaar door kunt genieten van buitenleven, gezelligheid en ontspanning!

Garage:
Vanuit de tuin is er een toegangsdeur naar de ruime, geïsoleerde garage (ca. 14m²) met aan de voorzijde dubbele houten toegangsdeur. Deze veelzijdige ruimte biedt volop mogelijkheden: ideaal om de auto of fietsen te stallen, maar ook zeer geschikt om in te richten als bijvoorbeeld een werkplaats, hobbyruimte of kantoor aan huis.

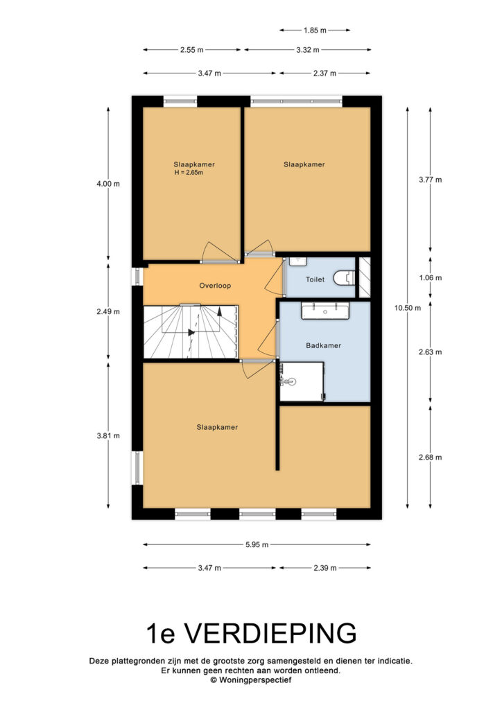
Eerste verdieping:
Via de trap in de hal bereik je de overloop van de eerste verdieping met een drietal slaapkamers, een badkamer en separaat een toiletruimte met fontein.

De royale ouderslaapkamer (ca. 20m²) bevindt zich aan de voorzijde en is voorzien van grote raampartijen en een praktische walk-in-closet. Aan de achterzijde liggen nog twee lichte slaapkamers (ca. 10m² en ca. 13m²), ideaal als kinder-, werk- of logeerkamer.

Badkamer:
De moderne en compleet uitgeruste badkamer is afgewerkt met stijlvolle grijs-witte tegels en beschikt over een ruime inloopdouche met hand- en regendouche en glazen douchewand. Verder vind je hier een wastafelmeubel met dubbele wasbak en kranen en een bijpassende zwarte handdoekenradiator.
Deze verdieping heeft een stijlvolle pvc-vloer met comfortabele vloerverwarming.

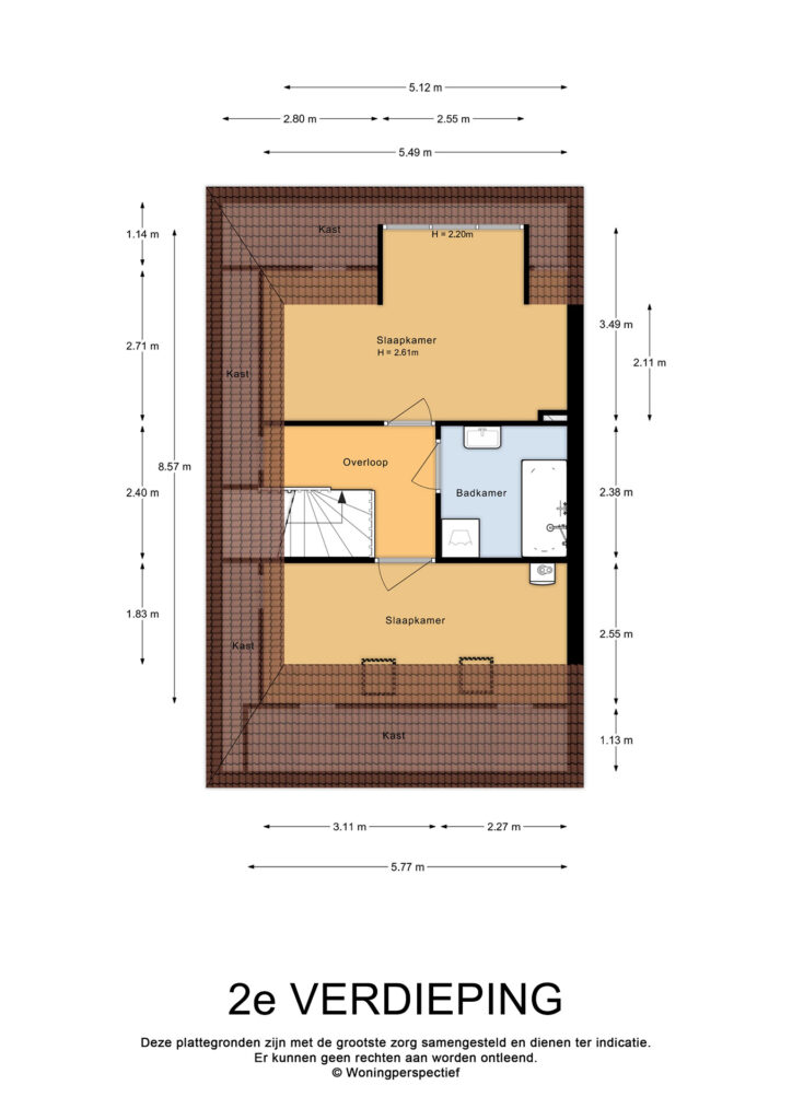
Tweede verdieping:
Via de trap bereik je de overloop van de tweede verdieping. Hier vind je nog twee ruime slaapkamers, een tweede badkamer én volop bergruimte achter de knieschotten.

De lichte slaapkamer aan de achterzijde (ca. 14m²) is uitgerust met een dakkapel voor extra ruimte en comfort. In deze kamer bevindt zich ook de verdeler van de zonnepanelen.

De slaapkamer aan de voorzijde (ca. 9m²) is eveneens royaal en beschikt over twee grote dakramen die zorgen voor veel daglicht. Hier vind je tevens de cv-ketel (Intergas) en de unit voor de mechanische ventilatie (Duco).

De tweede badkamer is praktisch ingedeeld en voorzien van een douche-bad combinatie, een wastafel met spiegel, een radiator én de aansluitingen voor wasmachine en droger.
Deze verdieping heeft een stijlvolle pvc-vloer.

Dankzij de ruime opzet en de praktische indeling is deze verdieping ideaal als plek voor tieners die hun eigen domein willen, voor logees, of juist als werk- of hobbyruimte.

Bijzonderheden:
– Moderne en duurzame twee-onder-een-kapwoning met maar liefst 178m² woonoppervlak.
– Gelegen op een van de mooiste plekjes van Hoef en Haag.
– Royale en lichte tuingerichte woonkamer met sfeervolle gashaard en een ruime woonkeuken.
– Vijf slaapkamers en twee badkamers.
– Prachtig aangelegde achtertuin met aangebouwde stenen garage en achterom.
– Fraaie pvc-vloer met comfortabele vloerverwarming op de begane grond en de eerste verdieping.
– De woning is v.v. HR++ beglazing, houten kozijnen met ventilatieroosters boven de ramen.
– Elektrisch bedienbaar zonnescherm aan de achterzijde.
– De slaapkamers zijn voorzien van horren.
– De keuken, het toilet en de badkamer zijn voorzien mechanische ventilatie.
– Verwarming en warm water middels CV-ketel (Intergas, eigendom, 2020).
– Uitgerust met 10 zonnepanelen en HR++ glas.
– Voldoende parkeergelegenheid op eigen oprit, in garage en voor de woning.
– Definitief energielabel: A.
– Woonoppervlakte van deze woning is officieel ingemeten volgens BBMI (Branche
Brede Meet Instructie, afgeleide van NEN 2580).

Enthousiast geworden? Dat kunnen wij ons voorstellen! Plan snel een bezichtiging en laat je verrassen door de ruimte en sfeer van dit bijzondere huis!

  • Vraagprijs
    € 915.000,- k.k.
  • Soort woning
    eengezinswoning
  • Bouwjaar
    2020
  • Woonoppervlakte
    178 m2
  • Perceeloppervlakte
    328 m2
  • Inhoud
    689 m3
  • Aantal kamers
    6
  • Aantal slaapkamers
    5
  • Energielabel
    A

Plattegronden

Kaart