Nieuwegein – Willem Elsschothove 59

Vraagprijs - € 665.000,- k.k.

Royaal familiehuis met vrij uitzicht op groen en water in Galecop!
Deze uitstekend onderhouden woning, met een woonoppervlakte van maar liefst 146m², is gelegen op een prachtige en rustige locatie met vrij uitzicht op groen en water!
De woning biedt alles wat je je kunt wensen: een royale woonkeuken met aangrenzende, sfeervolle overkapte patio, een ruime en lichte woonkamer, drie riante slaapkamers, een comfortabele badkamer en zowel een voor- als achtertuin op het zonnige zuiden. Daarnaast beschikt de woning over een grote garage én parkeergelegenheid op eigen terrein.
Direct voor de woning bevindt zich bovendien een eigen parkeerplaats en is er voldoende gratis parkeergelegenheid op de openbare weg. Het is mogelijk aan de voorzijde van de woning, in de binnentuin, een buitenberging te realiseren.

Galecop is een gewilde wijk in Nieuwegein en kenmerkt zich door de uitstekende faciliteiten voor sport, winkels en gezondheidszorg. In de wijk zijn 3 uitstekende basisscholen aanwezig. Galecop ligt heel centraal: bedrijvenpark Papendorp grenst aan de noordkant van Galecop, uitvalswegen (A2, A12 en A27) liggen in de directe nabijheid en met de bus bereik je Utrecht Centraal Station binnen 16 minuten.

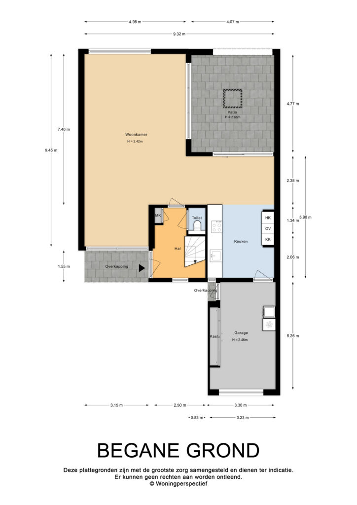
Begane grond:
Vanuit de ruime hal met meterkast, garderobe en toilet, bereik je de royale woonkamer met een open keuken.

De huidige bewoners hebben de begane grond volledig gemoderniseerd en recent de patio voorzien van een prachtige, sfeervolle overkapping met lichtkoepels.
De woning kenmerkt zich door de ruime indeling en de hoeveelheid natuurlijk licht die door de grote raampartijen naar binnen valt.

De ruim bemeten woonkamer (ca. 54m²) is dankzij de grote raampartijen aan de voor-, achter- én zijkant heerlijk licht en heeft een prettige, open sfeer. Aan de achterzijde zorgt de markies voor extra comfort op zonnige dagen. De ruimte is afgewerkt met stijlvolle houten vloerdelen en voorzien van een convectorputverwarming voor de twee grote raampartijen.

Vanuit de woonkamer bereik je de royale en lichte woonkeuken (ca. 12m²). Deze keuken straalt een moderne strandsfeer uit door de combinatie van lichte kleuren, natuurlijke materialen en de unieke mozaïek pebblestone-vloer. De keuken is uitgerust met een extra diep natuurstenen werkblad van 75 cm, een grote RVS-spoelbak, een praktische Quooker-kraan en diverse inbouwapparatuur, waaronder een 4-pits keramische kookplaat (Atag), RVS-afzuigkap (Atag), combi-oven (Atag), grote koelkast met climat freshboxen (Atag) en vaatwasser (AEG). Dankzij de grote raampartij en de vele lades biedt deze keuken niet alleen volop licht en ruimte, maar ook veel bergruimte. Een heerlijke plek voor kookliefhebbers en gezellige etentjes met familie of vrienden.

Patio en achtertuin:
Via de schuifpui in de keuken stap je zo de sfeervolle, overdekte patio in en vervolgens door naar de fraai aangelegde achtertuin op het zuiden. De huidige bewoners hebben recent een prachtige overkapping met lichtkoepels gerealiseerd, waardoor je al vroeg in het voorjaar én tot laat in het najaar kunt genieten van het buitenleven.
De zonnige tuin is met veel zorg ingericht en voorzien van een ruim zonneterras, buitenverlichting en een buitenkraan. De groene omlijsting van struiken zorgt voor volop privacy, terwijl je tegelijkertijd geniet van het prachtige, vrije uitzicht over water en groen. Een heerlijke plek om het hele jaar door te ontspannen en te genieten van rust, zon en gezelligheid.

Garage:
Vanuit de keuken is de inpandige berging/garage (ca. 16m²) bereikbaar. Deze ruimte is voorzien van een praktische elektrisch bedienbare roldeur en is tevens toegankelijk vanuit de voortuin. In de garage bevinden zich de aansluitingen voor de was- en droogmachine. Dankzij de royale afmetingen en de ligging op de begane grond leent deze ruimte zich ook uitstekend voor het realiseren van een kantoor of praktijk aan huis, ideaal voor wie wonen en werken wil combineren.

1e verdieping:
Via de trap in de hal bereik je de ruime overloop op de eerste verdieping met toegang tot een slaapkamer over de volledige lengte van de woning (ca. 20m²) en de badkamer aan de achterzijde.

De ruime badkamer is voorzien van een douchecabine, wastafel met spiegel, groot ligbad met verwarmingfunctie, toilet en een raam.

2e verdieping:
Via de trap op de overloop bereik je de ruime overloop op de tweede verdieping met toegang tot twee ruime slaapkamers (ca. 16m² en ca. 10m²).

De verdiepingen zijn voorzien van een stijlvolle houten vloer.

Bijzonderheden:
– Royaal familiehuis met drie grote slaapkamers.
– Prachtige ligging met aan de achterzijde vrij uitzicht op groen en water!
– Ruime en lichte keuken met schuifpui naar de overdekte patio en achtertuin.
– Royale lichte woonkamer omgeven door grote raampartijen.
– De woning is v.v dubbele beglazing en houten kozijnen met ventilatieroosters.
– De woning is v.v. mechanische ventilatie.
– Verwarming en warmwater door middel van stadsverwarming.
– Mogelijkheid voor inpandige praktijkruimte voorzien van verwarming, verlichting en wateraansluiting (nu in gebruik als berging).
– Prachtige patio met sfeervollle overkapping gerealiseerd in 2025.
– Huurgrond tuin, achter de patio, € 68,17 per jaar (Gemeente Nieuwegein).
– Eigen parkeerplaats voor de woning en gratis parkeergelegenheid op de openbare weg.
– Definitief energielabel: A.
– Woonoppervlakte van deze woning is officieel ingemeten volgens BBMI (Branche Brede Meet Instructie, afgeleide van NEN 2580).

Enthousiast geworden? Plan snel een bezichtiging en laat je verrassen door de ruimte en sfeer van dit bijzondere huis!

  • Vraagprijs
    € 665.000,- k.k.
  • Soort woning
    eengezinswoning
  • Bouwjaar
    1999
  • Woonoppervlakte
    146 m2
  • Perceeloppervlakte
    165 m2
  • Inhoud
    567 m3
  • Aantal kamers
    4
  • Aantal slaapkamers
    3
  • Energielabel
    A

Plattegronden

Kaart