Nieuwegein – Tijmgaarde 4

Vraagprijs - € 495.000,- k.k.

Deze uitstekend onderhouden eengezinswoning ligt in de groene en kindvriendelijke wijk ‘De Gaardes’. Naast een tuingerichte woonkamer met open keuken (ca. 41m²), beschikt de woning over vier slaapkamers, ruime badkamer, zonnige voor- en achtertuin met houten berging, garage aan de voorzijde en een achterom.
Er is voldoende (gratis) parkeergelegenheid nabij de woning op de openbare weg.

De wijk “De Gaardes” staat bekend om zijn groene, rustige omgeving en centrale ligging. Op korte afstand vind je scholen, winkels, openbaar vervoer en recreatiemogelijkheden zoals park Oudegein en de Nedereindse Plas. Daarnaast is de aansluiting op de A2, A12 en A27 uitstekend, waardoor je binnen korte tijd in Utrecht en omstreken bent.
Een fijne, rustige buurt met alle gemakken binnen handbereik!

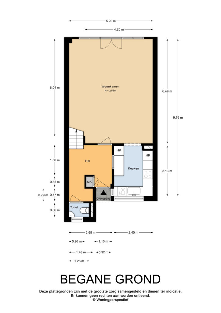
Begane grond:
Vanuit de hal met meterkast, garderobe en toilet, bereik je de lichte woonkamer met aan de voorzijde een open keuken met grote raampartij.

Moderne en ruime keuken in U-opstelling
De open keuken (ca. 7m²) is uitgevoerd in een praktische U-opstelling en is van alle gemakken voorzien. Het fraaie granieten werkblad en de dubbele RVS spoelbak geven de keuken een luxe uitstraling. De inbouwapparatuur bestaat uit een 4-pits inductiekookplaat (Miele), RVS afzuigkap (Miele), heteluchtoven (Miele), vaatwasser (AEG) en een koel-/vriescombinatie (Siemens). Dankzij de 10-liter boiler is er altijd snel warm water beschikbaar. Verder is de keuken voorzien van sfeervolle inbouwspotjes, softclose lades en kasten en een elektrisch bedienbaar zonnescherm voor extra comfort.

De lichte woonkamer (ca. 33m²) wordt gekenmerkt door een royale raampartij en openslaande deuren naar de achtertuin, wat zorgt voor een prettige lichtinval en een directe verbinding met buiten. Voor extra comfort en privacy zijn de deuren voorzien van rolluiken en een elektrisch bedienbaar zonnescherm.

De gehele begane grond is voorzien van een eiken parketvloer.

Verzorgde achtertuin met volop zon
De diepe achtertuin ligt op het noorden, maar dankzij de vrije ligging geniet je hier vrijwel de hele dag van de zon. De tuin is fraai aangelegd met kunstgras, diverse borders met bloemen en planten, een houten schutting en praktische tuinverlichting. Daarnaast beschikt de tuin over een buitenkraan, een handige berging en een achterom.

Stenen garage aan de voorzijde
Aan de voorzijde van de woning bevindt zich een ruime, stenen garage die is voorzien van elektra. Ideaal voor het veilig stallen van een auto en fietsen, het opbergen van gereedschap of het inrichten als hobbyruimte. De garage beschikt over een kunststof roldeur die op afstand bedienbaar is én een praktische bergvliering voor extra opslagruimte.

1e verdieping:
Via de trap in de hal kom je op de overloop van de eerste verdieping. Hier bevinden zich twee royale slaapkamers.
De slaapkamer aan de voorzijde (ca. 19m²) beschikt over een vaste linnenkast met schuifdeuren en is voorzien van een groot draai-kiepraam én dubbele openslaande deuren naar het balkon.
Beide zijn uitgerust met handbedienbare rolluiken.
De slaapkamer aan de achterzijde (ca. 17m²) heeft eveneens rolluiken voor de ramen. Dankzij de opgetrokken achtergevel is hier extra ruimte gecreëerd.
Beide kamers zijn heerlijk licht door de grote raampartijen en bieden volop comfort en gebruiksmogelijkheden.

De ruime badkamer is voorzien van een moderne inloopdouche, een dubbel wastafelmeubel met spiegel en geïntegreerde verlichting, inbouwspots en een radiator. Daarnaast beschikt de badkamer over een toilet en een vaste kast voor extra opbergruimte.

2e verdieping:
Via de trap bereik je de overloop van de tweede verdieping, met toegang tot twee slaapkamers.

De derde slaapkamer (ca. 11m²) bevindt zich aan de achterzijde en is voorzien van een vaste schuifkast en een groot Velux dakraam met bijpassende raambekleding.
Aan de voorzijde ligt de vierde slaapkamer (ca. 7m²), eveneens uitgerust met een groot Velux dakraam met raambekleding. Deze kamer beschikt daarnaast over een praktische bergvliering, bereikbaar via een losse houten trap. In deze ruimte bevinden zich tevens de aansluitingen voor de was- en droogmachine, evenals een afgesloten CV-ruimte (Daalderop, 2005).

Beide verdiepingen zijn afgewerkt met vloerbedekking.

Bijzonderheden:
– Gelegen in een groene en kindvriendelijke wijk met basisscholen en supermarkt op loopafstand.
– Fraaie groene omgeving met rustige ligging.
– Ruime familiewoning met vier slaapkamers.
– Zonnige voor- en achtertuin met buitenkraan, elektrapunt en achterom
– De woning is voorzien van een ruime keuken, badkamer en toiletruimte.
– Uitstekende isolatievoorzieningen zoals spouwmuurisolatie uitgevoerd in 2021, dakisolatie, kruipruimte isolatie en HR+ dubbele beglazing met kunststof kozijnen.
– De achtergevel is opgetrokken, er zijn daarmee geen schuine daken/wanden meer op de 1e verdieping.
– Alle slaapkamers op de 1e verdieping zijn voorzien van horren.
– Elektrisch zonnescherm woonkamer en keuken, rolluiken voor de tuindeuren en slaapkamers 1e verdieping.
– Mechanische ventilatie in de keuken en badkamer.
– Vrijstaande garage aan de voorzijde van de woning voorzien van een op afstand bedienbare kunststof roldeur, een praktische bergvliering en elektra.
– Een houten berging in de tuin voorzien van elektra.
– De woning is voorzien van 10 zonnepanelen van 320 Wp (2021).
– Verwarming en warmwater door middel van CV-installatie (Daalderop 2005).
– Niet bewoningsclausule van toepassing.
– Definitief energielabel: A
– Voldoende (gratis) parkeergelegenheid voor de woning op openbare weg.
– Woonoppervlakte van deze woning is officieel ingemeten volgens BBMI (Branche
Brede Meet Instructie, afgeleide van NEN 2580).

Enthousiast geworden? Plan snel een bezichtiging en laat je verrassen door de ruimte en sfeer van dit mooie huis!

  • Vraagprijs
    € 495.000,- k.k.
  • Soort woning
    eengezinswoning
  • Bouwjaar
    1976
  • Woonoppervlakte
    126 m2
  • Perceeloppervlakte
    165 m2
  • Inhoud
    436 m3
  • Aantal kamers
    5
  • Aantal slaapkamers
    4
  • Energielabel
    A

Plattegronden

Kaart