Nieuwegein – Prof. Dr. Claylaan 2

Vraagprijs - € 475.000,- k.k.

Familie-hoek-huis met een garage in het populaire Jutphaas Wijkersloot!

In de geliefde wijk Jutphaas ligt deze fraaie en goed onderhouden hoekwoning.
Deze woning beschikt over een woonkamer met moderne keuken, vier slaapkamers, voor- zij- en achtertuin, garage en een achterom. Ook vóór de woning is ruimschoots (gratis) parkeergelegenheid op de openbare weg.

De mooie en rustige wijk Jutphaas-Wijkersloot is zeer centraal gelegen.
Scholen, kinderdagverblijven, sport- en speelfaciliteiten, het moderne stadshart van Nieuwegein, winkelcentrum Makado, uitstekende bus- en tramvoorzieningen (rechtstreekse verbinding Science Park en Utrecht centraal station) en uitvalswegen (A12, A2, A27) zijn kort nabij. Kortom: alle voorzieningen zijn binnen handbereik!

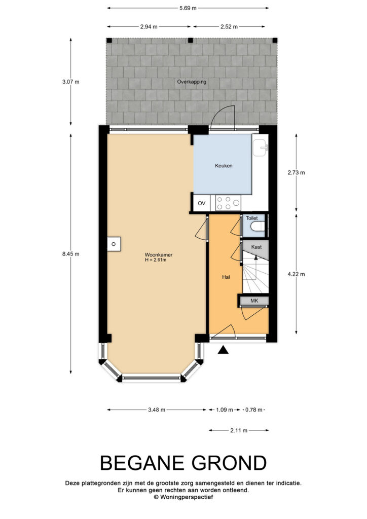
Begane grond:
Vanuit de hal met toegang tot toilet, garderobe, trapopgang, diepe trapkast, meterkast, bereikt u de woonkamer (ca. 28m²) met moderne open keuken (ca. 7m²).

De ruime en lichte woonkamer bevindt zich aan de voorzijde en is voorzien van een erker.
Hier geniet u van veel lichtinval en van het vrije uitzicht.
Verder is de woonkamer uitgerust met een sfeervolle en energiezuinige pelletkachel.

De moderne L-vormige keuken is voorzien van een composiet werkblad, verlichting, RVS spoelbak en diverse inbouwapparatuur, zoals een 5-pits gaskookplaat met wokbrander (Siemens), RVS afzuigkap (Siemens), heteluchtoven (Siemens), koelkast en grote vriezer (Siemens) en een vaatwasser (Siemens). De keuken biedt veel opbergruimte dankzij de vele lades (softclose) en is voorzien van sfeervolle spotjes. Vanuit de keuken is de tuin bereikbaar middels een openslaande deur.

De verzorgde en beschutte zij- en achtertuin (N) is voorzien van een woning brede aluminium terrasoverkapping met verlichting. Verder is de tuin voorzien van sierbestrating, borders met diverse bloemen, planten en een boom, houten schutting, hekwerk, buitenkraan en een achterom.

De begane grond is voorzien van een laminaatvloer.

Vrijstaande stenen garage:
De ruime vrijstaande stenen garage is voorzien van een zolder en biedt een zee aan ruimte! De totale gebruiksoppervlakte is maar liefst 23m². Verder is de garage voorzien van elektra, toegangsdeur vanuit de tuin, omvormer voor de zonnepanelen en een elektrische roldeur.

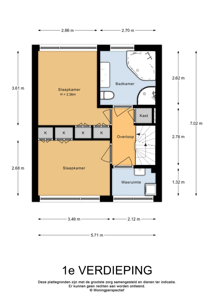
1e verdieping:
Via de trap in de hal bereikt u de overloop van de 1e verdieping.
Hier treft u twee slaapkamers, een waskamer en de badkamer.

Aan de voorzijde vindt u een ruime slaapkamer (ca. 9m²) voorzien van een vaste kast en spotjes. Ook bevindt zich hier de waskamer (ca. 3m²) voorzien van opstelplaats voor de was- en droogmachine en een praktische wasbak.

Aan de achterzijde bevindt zich de 2e slaapkamer (ca. 11m²) voorzien van vaste kast en spotjes.

De ruime en geheel betegelde badkamer is uitgerust met een duo hoekbad, dubbele wastafelmeubel met spiegelkast en verlichting, inbouwspots, designradiator, toilet en een raampartij.

2e verdieping:
Via de trap op de overloop bereikt u eerst de voorzolder met opstelplaats voor de CV-ketel (Vaillant 2016). Vanuit de voorzolder bereikt u de slaapkamers aan de voor- en achterzijde (ca. 12m² en ca. 11m²) met een stahoogte van 1.95), beide voorzien van een dakkapel en spotjes. Hier bevindt zich veel berguimte achter de knieschotten en een praktische bergruimte.

De verdiepingen zijn voorzien van vloerbedekking.

Bijzonderheden:
– Goed onderhouden eengezins(hoek)woning met vier slaapkamers.
– Ruime en beschutte voor-, zij- en achtertuin v.v. buitenkraan en sfeervolle terrasoverkapping met verlichting.
– Grote vrijstaande werkplaats/garage met zolder en elektrische roldeur.
– Op een toplocatie met alle voorzieningen binnen handbereik.
– Woning is nagenoeg geheel v.v. dubbele beglazing met houten kozijnen.
– De woning is voorzien van twee dakkapellen op de 2e verdieping (stahoogte 1.95).
– Rolluik aan de voorzijde van het huis op de 1e verdieping (elektrisch).
– De woning is uitgerust met een energiezuinige pelletkachel met lage stookkosten.
– De kruipruimte is geïsoleerd (2023).
– De woning is voorzien van 8 zonnepanelen met een opbrengst van 310 wp per paneel.
– Verwarming en warm water d.m.v CV-combiketel (Vaillant 2016).
– Definitief energielabel B.
– Woonoppervlakte van deze woning is officieel ingemeten volgens BBMI (Branche Brede Meet Instructie (afgeleide van NEN 2580).

Indien deze woning uw interesse heeft gewekt, dan kunt u zowel tijdens als buiten kantoortijden met Gwen Mommersteeg een bezichtigingsafspraak maken.

  • Vraagprijs
    € 475.000,- k.k.
  • Soort woning
    eengezinswoning
  • Bouwjaar
    1961
  • Woonoppervlakte
    111 m2
  • Perceeloppervlakte
    168 m2
  • Inhoud
    386 m3
  • Aantal kamers
    6
  • Aantal slaapkamers
    4
  • Energielabel
    B

Plattegronden

Kaart