Nieuwegein – Harpij 6

Vraagprijs - € 475.000,- k.k.

In-stap-klaar familiehuis in de ‘De Doorslag’
Deze uitstekend onderhouden tussenwoning ligt in de groene en kindvriendelijke wijk ‘De Doorslag’. Naast een lichte woonkamer met moderne open keuken beschikt de woning over maar liefst vier slaapkamers, moderne badkamer, ruime en lichte werkplek op de voorzolder, sfeervolle voor- en achtertuin, stenen berging en achterom.
In de wijk is er voldoende parkeergelegenheid op de openbare weg.

De mooie en rustige wijk de Doorslag ligt in het hart van Nieuwegein, in de directe nabijheid van Park Oudegein, Cityplaza, Antonius Ziekenhuis, scholen, kinderdagverblijven, het gezellige IJsselstein op 10 fietsminuten, sport- en speelfaciliteiten en uitstekende OV-voorzieningen (sneltram naar Utrecht Centraal op 5 wandelminuten en 9 wandelminuten naar het busstation met onder andere een goede verbinding naar de Uithof) en de uitvalswegen (A2, A12 en A27) zijn ook kort nabij.

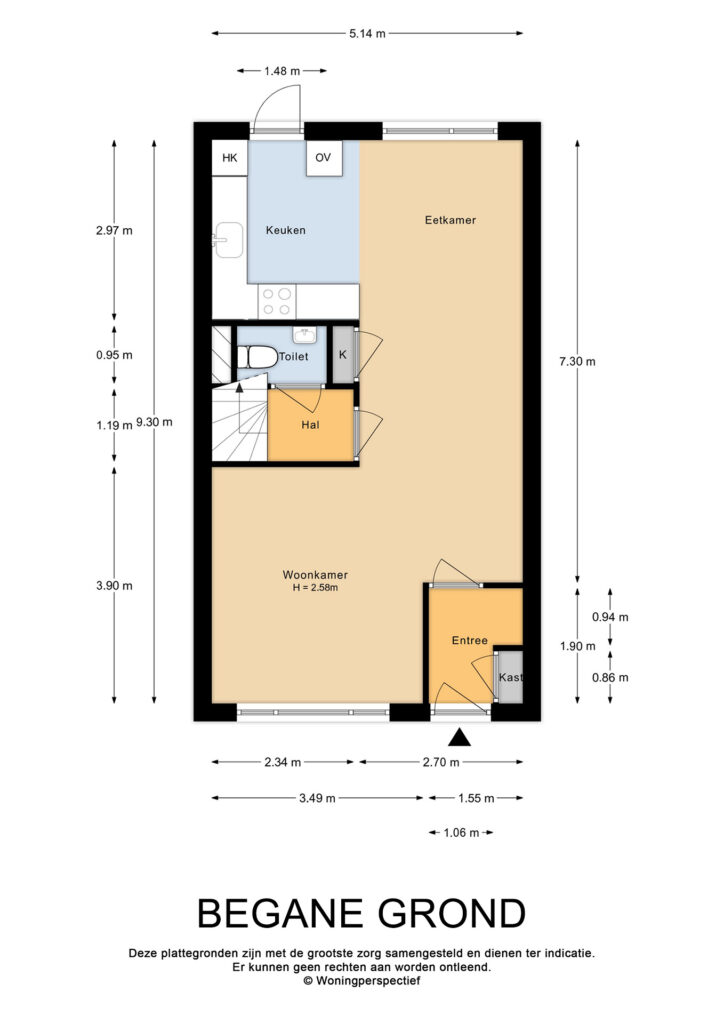
Begane grond:
Vanuit de hal met garderobe en meterkast, komt u in de lichte woonkamer met aan de achterzijde een halfopen keuken (ca. 39 m²) met grote raampartij en toegang tot de achtertuin.
De zwarte en stijlvolle keuken is door de huidige bewoners vernieuwd (2022) en heeft een kunststof werkblad met een zwarte RVS spoelbak en diverse inbouwapparatuur, zoals: 4-pits inductie kookplaat (Zanussi), RVS vlakscherm afzuigkap (Zanussi), hetelucht oven (Zanussi), combi/oven (Zanussi), vaatwasser (Whirlpool) en een koel/vries combinatie (Zanussi). In de kasten en ladesvoorzien van softclose is voldoende opbergruimte en de keuken is uitgerust met sfeervolle ledverlichting.
De woonkamer (ca. 17m²) bevindt zich aan de voorzijde van de woning en heeft een handige bergkast.
De keurig aangelegde achtertuin is voorzien van sierbestrating gecombineerd met borders en een diversiteit aan vaste planten, grassen en struiken. Verder heeft de tuin een elektrapunt (voor- en achter), buitenkraan (voor- en achter), ruime stenen berging v.v. elektra en een achterom. Door de vrije ligging aan de achterzijde geniet je hier heel de dag van de zon, ruimte en rust.
Vanuit de woonkamer kom je in de hal met toegang tot het toilet en trapopgang naar boven.
De gehele begane grond is voorzien van een fraaie massief hardhouten Canadese vloer.

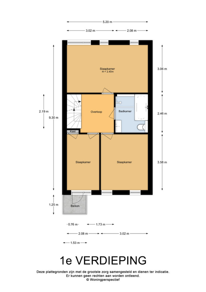
1e verdieping:
Via de trap in de tussenhal bereik je de overloop op de 1e verdieping met toegang tot twee slaapkamers (ca. 11 m² en ca. 7 m² met een balkon) aan de voorzijde en een royale derde slaapkamer (ca.16 m²) aan de achterzijde.
De geheel betegelde badkamer is voorzien van een ruime inloopdouche met hand- en regendouche en een glazen douchescherm, luxe ligbad, wastafelmeubel met spiegel en verlichting, designradiator en een zwevend toilet. Verder is de badkamer uitgerust met sfeervolle spotjes.

2e verdieping:
Via de trap bereik je de ruime 2e verdieping. Deze is zowel aan de voor- als achterzijde voorzien van inbouwspotjes. Op de voorzolder (ca.13 m²) is een heerlijke werkplek gecreëerd. Ook bevindt zich hier de opstelplaats voor de wasmachine en -droger en achter de op maat gemaakte kasten is de opstelplaats voor de stadsverwarming en de unit voor de mechanische ventilatie. Aan bergruimte geen gebrek; achter de op maat gemaakte knieschotten bevindt zich een zee aan bergruimte.

De vierde slaapkamer (ca. 10 m²) bevindt zich aan de voorzijde van de woning en is voorzien van vaste kasten onder het dakbeschot en een op maat gemaakte bedstee.
De bovenverdiepingen zijn voorzien van laminaat.

Bijzonderheden:
– Uitstekend onderhouden ruime tussenwoning met vier slaapkamers en een werkplek.
– Gelegen in de groene en kindvriendelijke wijk de Doorslag.
– Op een toplocatie met alle voorzieningen binnen handbereik.
– Moderne keuken (2022) en badkamer (2011).
– Mechanische ventilatie in de keuken, badkamer.
– De hele woning is v.v. HR++ beglazing met kunststof kozijnen.
– Alle openslaande ramen zijn voorzien van horren.
– Verwarming en warmwater door middel van stadsverwarming.
– Sfeervolle voor- en achtertuin met buitenkraan voor- en achter, verlichting en achterom.
– Ruime stenen berging v.v. elektra.
– Definitief energielabel: B
– Woonoppervlakte van deze woning is officieel ingemeten volgens BBMI (Branche
Brede Meet Instructie, afgeleide van NEN 2580).

Mocht deze woning uw interesse hebben gewekt, dan kunt u zowel tijdens als buiten kantoortijden met Gwen Mommersteeg een bezichtigingsafspraak maken.

  • Vraagprijs
    € 475.000,- k.k.
  • Soort woning
    eengezinswoning
  • Bouwjaar
    1978
  • Woonoppervlakte
    119 m2
  • Perceeloppervlakte
    148 m2
  • Inhoud
    405 m3
  • Aantal kamers
    6
  • Aantal slaapkamers
    4
  • Energielabel
    B

Plattegronden

Kaart