Nieuwegein – Gerbrandypark 60

Vraagprijs - € 495.000,- k.k.

Ruim en licht 3-kamer-maisonette-appartement met balkon en terras op het zuiden en een fantastisch uitzicht over water en groen.

Dit ruime en lichte 3-kamermaisonnette is gelegen in het luxe appartementengebouw ‘De Terrastuinen’ in de populaire woonwijk Galecop.
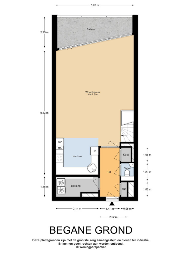
De ruime en lichte woonkamer met open keuken bevindt zich op de begane grond en biedt een prachtig vrij uitzicht over de waterpartij en de dierenweide. Aansluitend ligt een zonnig balkon op het zuiden.
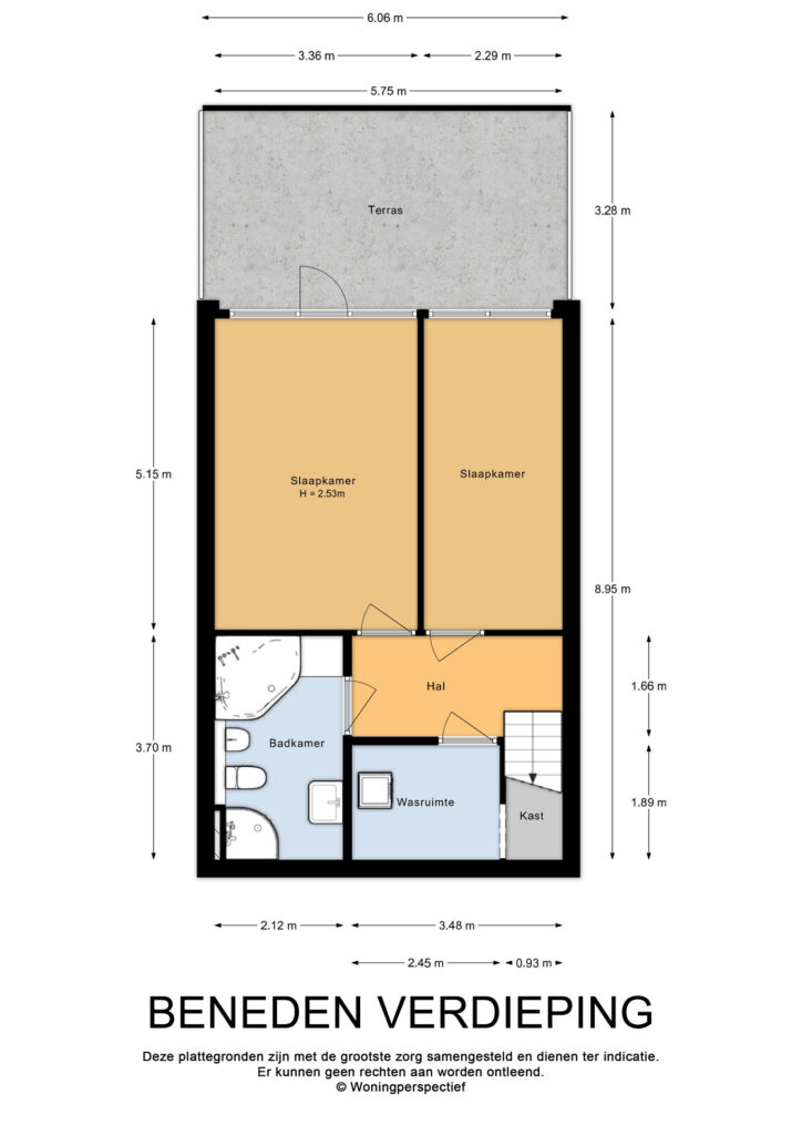
Op de onderliggende verdieping bevinden zich twee ruime slaapkamers en de badkamer. Vanuit één van de slaapkamers is het royale zonneterras bereikbaar. Met een balkon én een ruim terras op het zuiden beschikt dit appartement over een uitzonderlijk fijne buitenruimte op twee niveaus. Daarnaast is er zowel op de woon- als op de slaapverdieping een praktische berging aanwezig.

Toplocatie met uitgebreide faciliteiten:
Het complex is uitgerust met exclusieve faciliteiten zoals een verwarmd binnenzwembad, sauna/infraroodcabine, fitnessruimte, gemeenschapsruimte met biljart en logeerkamers voor gasten en een afgesloten gemeenschappelijke tuin. Een eigen garage bevindt zich in de afgesloten parkeerkelder van waaruit u meteen met de lift naar het appartement kunt.

Met een ligging in Galecop heeft u alles binnen handbereik: winkelcentrum Galecop, gezondheidscentrum De Galecopperboog, scholen, sportfaciliteiten en recreatiemogelijkheden. Binnen 20 fietsminuten bereikt u het bruisende hart van Utrecht. De bushalte is om de hoek en de uitvalswegen A2, A12 en A27 zijn snel bereikbaar. Voor de deur zijn gratis parkeerplaatsen beschikbaar.

Begane grond:
Entree met bellentableau en video-intercom.
Afgesloten centrale hal met brievenbus en tweede hal met toegang tot de appartementen, lift en de onderbouw waar de genoemde gemeenschappelijke voorzieningen zich bevinden.

Indeling appartement:
Vanuit de centrale hal met meterkast, toiletruimte, afgesloten garderobe en praktische berging (ca. 4m²) bereikt u de royale, zonnige woonkamer (ca. 50m²). De schuifpui geeft toegang tot het perfect op het zuiden gelegen balkon, voorzien van een elektrisch bedienbaar zonnescherm. Hier geniet u het hele jaar door comfortabel van de zon én het weidse uitzicht over de waterpartij en de dierenweide. Een heerlijke plek om volledig tot rust te komen.

De lichte keuken is uitgevoerd met een granieten werkblad, volop kastruimte en sfeervolle inbouwspots. Verder beschikt de keuken over een dubbele RVS-spoelbak met afgietgedeelte en diverse inbouwapparatuur (allen van Siemens), waaronder een 4-pits keramische kookplaat, RVS-afzuigkap, magnetron en heteluchtoven, een vaatwasser (Bosch, 2024) en een koel-/vriescombinatie (Siemens). Deze verdieping is voorzien van lamelparket.

Souterrain:
Via de trap in de woonkamer bereikt u het souterrain, waar zich de twee ruime slaapkamers, was- en bergruimte en badkamer bevinden.

De hoofdslaapkamer (ca. 17m²) is voorzien van een grote kast en heeft directe toegang tot het tweede terras, een heerlijk privéplekje om de dag te beginnen met een kop koffie in de ochtendzon.

De tweede slaapkamer (ca. 12m²) bevindt zich ook aan de achterzijde van het appartement en is ook van goed formaat.

De badkamer (ca. 8m²) is royaal en compleet, met een douchecabine, ligbad, wastafelmeubel met spiegel en designverlichting, handdoeken radiator en een tweede toilet met bidet. Bovendien zorgt de elektrische vloerverwarming voor extra comfort, een heerlijke start van de dag.

Ruime was-/bergruimte (ca. 5m²) met opstelplaats voor de wasmachine en droger.
Deze verdieping is voorzien van vloerbedekking

Garage:
Ruime garage van 18m² voorzien van elektrische deur met afstandsbediening, gelegen in een afgesloten garagestraat.

Bijzonderheden:
– Op de begane grond in het complex ‘De Terrastuinen’ gelegen een royaal 3-kamer maisonnette appartement.
– Ruime en lichte woonkamer met glaswand over de volle breedte.
– Op een toplocatie met alle voorzieningen binnen handbereik (winkels, openbaar vervoer en medisch centrum op loopafstand).
– Balkon (ca. 10m²) en royaal terras (ca. 20m²) op het zuiden.
– Diverse luxe voorzieningen in het complex o.a. verwarmd zwembad, sauna/infrarood-cabine, fitnessruimte, lounge en gastenverblijven te huur voor bewoners i.v.m. bezoek.
– Ruime garage van 18 m² gelegen in een afgesloten garagestraat.
– Verwarming en warm water d.m.v. stadsverwarming.
– Mechanische ventilatie in de keuken, badkamer en toilet.
– Houten kozijnen met kantel/kiepramen en horren, de schuifpui heeft een schuifhor.
– Appartementencomplex is voorzien van lift en automatische deuropeners.
– Mogelijkheid voor het opladen van een elektrische auto voor de deur.
– Definitief energielabel:
– Gezonde en actieve vereniging van eigenaren.
– Servicekosten: € 316,- per maand inclusief opstal- en glasverzekering.
– Woonoppervlakte van deze woning is officieel ingemeten volgens BBMI (Branche Brede Meet Instructie, afgeleide van NEN 2580).

Plan een bezichtiging!
Ziet u zichzelf al wonen in dit royale appartement met unieke voorzieningen en een toplocatie? Neem dan snel contact op met Mommersteeg Makelaardij voor een bezichtiging.

  • Vraagprijs
    € 495.000,- k.k.
  • Soort appartement
    portiekflat
  • Bouwjaar
    2000
  • Woonoppervlakte
    115 m2
  • Inhoud
    385 m3
  • Aantal kamers
    3
  • Aantal slaapkamers
    2
  • Energielabel
    A+

Plattegronden

Kaart