Nieuwegein – Galecopperlaan 11

Vraagprijs - € 545.000,- k.k.

In-stap-klaar familiehuis in het populaire Galecop!
Deze mooie en uitgebouwde tussenwoning ligt op een heerlijke locatie met vrij uitzicht over de dierenweide en een groen speelveld. Het is een sfeervol en uitstekend onderhouden huis met een tuingerichte woonkamer, stijlvolle keuken, moderne badkamer en toilet, drie ruime slaapkamers en een kunststof dakkapel. Zowel de voor- als achtertuin (gelegen op het zuiden) zijn met zorg aangelegd. Daarnaast beschikt de woning over een stenen berging, een praktische achterom én zonnepanelen, helemaal klaar voor de toekomst!
Direct om de hoek is er voldoende (gratis) parkeergelegenheid op de openbare weg.

De ligging is prachtig, in het hart van Galecop met aan de voorzijde een fraai uitzicht op groen en de dierenweide. De wijk Galecop kenmerkt zich door de breed opgezette straten met veel begroeiing en biedt in de directe nabijheid, speel- en groenvoorzieningen, winkels, scholen, kinderopvang, diverse sportfaciliteiten, openbaar vervoer en de belangrijke uitvalswegen (A2, A12 en A27).

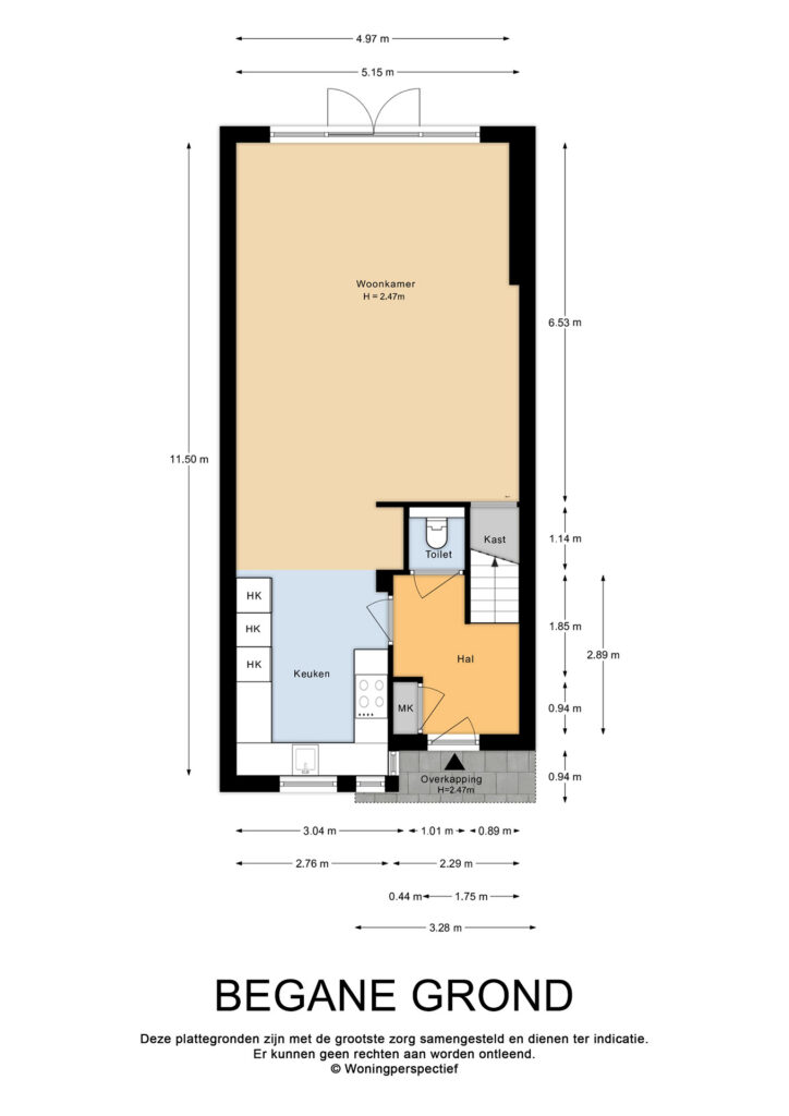
Begane grond:
Vanuit de ruime hal met meterkast, garderobe en vernieuwde toiletruimte (2021), kom je in de tuingerichte woonkamer met aan de voorzijde een open keuken (ca. 10m²).

Wowww! Wat een plaatje van een keuken! Deze stijlvolle U-vormige keuken (2022) straalt klasse en comfort uit. Dankzij de grote raampartij is het een heerlijke, lichte ruimte waar koken echt een plezier wordt. De keuken is voorzien van een kunststof werkblad, dimbare inbouwspots en een royale RVS-spoelbak. Verder vind je hier diverse inbouwapparatuur van Etna, waaronder een 4-pits inductiekookplaat met flexzones, afzuigkap, combi-oven/magnetron, heteluchtoven, vaatwasser en koel-/vriescombinatie

De huidige bewoners hebben de begane grond met veel smaak en oog voor detail verbouwd. Zo is de woonkamer (ca. 37m²) maar liefst 2,5 meter uitgebouwd en voorzien van dubbele openslaande deuren naar de achtertuin én een elektrisch bedienbaar zonnescherm (2023). De indeling is bovendien aangepast, waardoor er een royale hal is ontstaan. De trapkast heeft hierdoor een nieuwe, praktische plek gekregen en is voorzien van een handige schuifdeur.
De stijlvolle stalen deur met rookglas van de firma Hout & Staal en het op maat gemaakte wandmeubel in de nis zorgen voor een prachtig geheel en vormen een natuurlijke verbinding tussen de woonkamer en de keuken. Dankzij de vloerverwarming en de airconditioning, die zowel kan verwarmen als koelen, geniet je hier het hele jaar door van een optimaal wooncomfort.
De sfeervolle, dimbare inbouwspotjes maken het plaatje compleet.

De zonnige achtertuin ligt op het zuiden en is in 2022 volledig opnieuw aangelegd. De tuin is fraai aangelegd met strakke sierbestrating, een nieuwe houten schutting, sfeervolle tuinverlichting en een buitenkraan. Achterin bevindt zich een stenen berging met elektra en een praktische achterom door de vernieuwde poortdeur. Een heerlijke plek waar je volop kunt genieten van de zon en het buitenleven!

Op de begane grond ligt een mooie pvc-vloer met comfortabele vloerverwarming.

1e verdieping:
Vanuit de stijlvolle trap (2022) in de hal bereik je de overloop op de 1e verdieping met toegang tot twee riante slaapkamers en de badkamer.

De slaapkamer aan de achterzijde (ca. 16m²) is voorzien van een riante dakkapel met inbouwspots, elektrisch bedienbare rolluiken (2023), een stijlvolle vaste kast (2021), airconditioning en veel praktische bergruimte achter de knieschotten. Een heerlijke, comfortabele ruimte die perfect is als master bedroom!

De slaapkamer aan de voorzijde (ca. 14m²) is ook ruim bemeten en voorzien van twee raampartijen (waarvan een met schuifhor) en een vaste kast (2021).

De moderne badkamer is uitgerust met een inloopdouche met hand- en regendouche, zwevend toilet, inbouwspots, designradiator, wastafelmeubel met spiegel met led verlichting en een hoge bergkast.

De 1e verdieping is voorzien van een pvc-vloer.

2e verdieping:
Via de trap bereik je eerst de voorzolder voorzien van een raam, de opstelplaats voor de wasmachine en -droger, unit voor de mechanische ventilatie, veel bergruimte in de zolderkast en vervolgens de royale derde slaapkamer (ca. 12m²) voorzien van een raampartij aan de voorzijde en een groot Velux dakraam aan de achterzijde.

De zolder is voorzien van een pvc-vloer.

Bijzonderheden:
– Uitstekend onderhouden uitgebouwde en gemoderniseerde tussenwoning met drie ruime slaapkamers.
– Gelegen in de populaire en kindvriendelijke woonwijk Galecop.
– Fraaie opnieuw aangelegde voor- en achtertuin (Z) met buitenkraan, verlichting, berging en achterom.
– Stijlvolle vernieuwde keuken (2022) v.v. alle benodigde inbouwapparatuur.
– Vernieuwde badkamer (2019) en toiletruimte (2021).
– De woning is v.v. dubbele beglazing, houten kozijnen met ventilatieroosters boven de ramen (de dakkapel is van kunststof).
– Meeste kozijnen zijn v.v. draai-/kiepramen.
– De woonkamer is voorzien van een elektrisch zonnescherm (2023).
– Slaapkamer 1e verdieping heeft een ruime dakkapel (kunststof) en elektrisch bedienbare rolluiken (2023).
– De masterbedroom en de woonkamer zijn uitgerust met een airconditioning (2024).
– De woning is in 2022 voorzien van 10 zonnepanelen van 410 Wp.
– De dubbele openslaande deuren naar de achtertuin zijn voorzien van een plissehor.
– Mooie pvc-vloer in de gehele woning.
– Verwarming en warmwater door middel van stadsverwarming.
– De keuken, het toilet en de badkamer zijn voorzien van mechanische ventilatie.
– Definitief energielabel: A
– Woonoppervlakte van deze woning is officieel ingemeten volgens BBMI (Branche
Brede Meet Instructie, afgeleide van NEN 2580).

  • Vraagprijs
    € 545.000,- k.k.
  • Soort woning
    eengezinswoning
  • Bouwjaar
    1995
  • Woonoppervlakte
    122 m2
  • Perceeloppervlakte
    141 m2
  • Inhoud
    385 m3
  • Aantal kamers
    4
  • Aantal slaapkamers
    3
  • Energielabel
    A

Plattegronden

Kaart