Nieuwegein – Figarolaan 55

Vraagprijs - € 495.000,- k.k.

Energiezuinig familiehuis waar je zó in kunt trekken.
Deze ruime uitgebouwde tussenwoning ligt in de geliefde wijk Zuilenstein en biedt alles wat je zoekt. De woning beschikt over een stijlvolle volledig vernieuwde en moderne keuken, een ruime tuingerichte woonkamer, maar liefst vijf slaapkamers en een moderne badkamer. De zonnige achtertuin met stenen berging en achterom is de perfecte plek om te ontspannen.
Voor de deur vind je bovendien volop gratis parkeergelegenheid.

Zuilenstein is een rustige, kindvriendelijke wijk met een fraai park in het hart. Op loopafstand vind je gezellige horeca (Bij de Fortwachter, Celine, Jutfaes), Kasteel Rijnhuizen, Fort Jutphaas en diverse sportverenigingen. Scholen, kinderdagverblijven, sport- en speelvoorzieningen, winkels en het stadscentrum van Nieuwegein met overdekt winkelcentrum City Plaza liggen binnen handbereik. Dankzij de uitstekende OV-verbindingen en nabijgelegen uitvalswegen (A12, A2, A27) ben je bovendien snel in de omliggende steden.

Kortom: een instapklare gezinswoning met ruimte, licht en comfort op een centrale én rustige locatie!

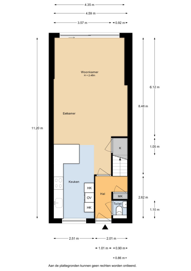
Begane grond:
Vanuit de hal met toegang tot het moderne toilet, trapopgang en meterkast, bereik je de
woonkamer (ca. 31m²) met aan de voorzijde de open keuken (ca. 11m²) met grote raampartij.

De stijlvolle, donker uitgevoerde Bruynzeel-keuken (2022) is een droom voor iedere thuiskok! Het grijs gemêleerde werkblad van kunststof met RVS-spoelbak geeft de keuken een luxe uitstraling. Koken doe je hier op de 4-pits Bora-inductiekookplaat met kookbladafzuiging, aangevuld met een combimagnetron en stoomoven (beide AEG), een vaatwasser (AEG) en een koel-vriescombinatie (AEG). De hoge kastenwand biedt volop opbergruimte, terwijl het werkblad geen bovenkasten heeft, waardoor een heerlijk ruimtelijk gevoel ontstaat. In het verlengde van het werkblad vind je een gezellige eetbar, perfect voor een snel ontbijt of een borrel tijdens het koken.

De lichte en ruime woonkamer bevindt zich aan de achterzijde van de woning en beschikt over een grote schuifpui naar de zonnige achtertuin en een praktische trapkast. Voor extra comfort is er een elektrisch bedienbaar zonnescherm aanwezig.

De gehele begane grond is voorzien van een stijlvolle PVC Hongaarse puntvloer met comfortabele vloerverwarming.

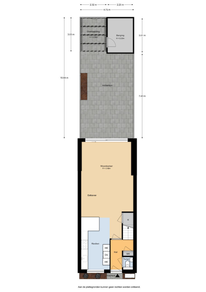
De achtertuin ligt op het zonnige zuidwesten en beschikt direct achter de woning over een heerlijk zonneterras, ideaal om te genieten van de middag- en avondzon. Verder is de tuin fraai aangelegd met groene plantenborders en voorzien van een houten schutting, buitenkraan, een ruime stenen berging en een praktische achterom.

1e verdieping:
Via de trap in de hal bereik je de overloop op de eerste verdieping met toegang tot twee ruime slaapkamers aan de achterzijde (ca. 13m² en ca. 7m²) en één aan de voorzijde (ca. 11m²). Alle slaapkamers zijn voorzien van horren.

De moderne badkamer is volledig betegeld in een combinatie van grijze en witte tegels, wat zorgt voor een frisse en eigentijdse uitstraling. De ruimte is uitgerust met een inloopdouche met glazen douchewand, een wastafelmeubel in houtlook met bijpassende spiegelkast en verlichting, een wandcloset en een praktische handdoekenradiator. Dankzij het grote dakraam geniet je van veel natuurlijk daglicht en optimale ventilatie.
Deze verdieping is voorzien van een stijlvolle laminaatvloer.

2e verdieping:
Via de vaste trap bereik je de ruime zolderverdieping met twee slaapkamers: aan de achterzijde een lichte royale kamer (ca. 11m²) met kunststof dakkapel, voorzien van een fraaie maatwerkkast en de omvormer voor de zonnepanelen en aan de voorzijde een slaapkamer (ca. 7m²) met groot dakraam en verduisterende raambekleding. In deze kamer bevinden zich tevens de aansluitingen voor de was- en droogmachine en de mechanische ventilatie-unit. Achter de knieschotten én op de bergvliering is volop praktische bergruimte aanwezig.
Deze verdieping is voorzien van vloerbedekking.

Bijzonderheden:
– Uitstekend onderhouden familiewoning met 5 slaapkamers.
– Gelegen in een groene en kindvriendelijke wijk.
– Op een toplocatie met alle voorzieningen binnen handbereik.
– Ruime en uitgebouwde tuingerichte woonkamer met grote schuifpui.
– Stijlvolle moderne Bruynzeel keuken vernieuwd in 2022.
– Royale zolderverdieping met dakkapel en een groot dakraam.
– Woning is v.v. dubbele beglazing, grotendeel kunststof kozijnen met ventilatieroosters.
– Zonnige achtertuin op het zuidwesten met elektrisch bedienbaar zonnescherm.
– Screens 1e verdieping aan de achterzijde.
– Schilderwerk en stucwerk beneden uitgevoerd in 2022.
– Schilderwerk boven uitgevoerd in 2022.
– De woning is v.v. mechanische ventilatie in het toilet en de badkamer.
– De woning is uitgerust met 10 zonnepanelen.
– Verwarming en warmwater door middel van stadsverwarming (nieuwe warmtewisselaar 2022).
– Definitief energielabel: A
– Woonoppervlakte van deze woning is officieel ingemeten volgens BBMI (Branche Brede Meet Instructie, afgeleide van NEN 2580).

  • Vraagprijs
    € 495.000,- k.k.
  • Soort woning
    eengezinswoning
  • Bouwjaar
    1981
  • Woonoppervlakte
    114 m2
  • Perceeloppervlakte
    114 m2
  • Inhoud
    398 m3
  • Aantal kamers
    6
  • Aantal slaapkamers
    5
  • Energielabel
    A

Plattegronden

Kaart