Houten – Wegenbouw 47

Vraagprijs - € 650.000,- k.k.

IN VERBAND MET HET GROTE ANIMO PLANNEN WIJ GEEN BEZICHTIGINGEN MEER IN.
Klaar voor morgen: modern gezinshuis met alles erop en eraan!

Ben je op zoek naar ruimte, comfort én duurzaamheid? Dan is dit royale hoekhuis met maar liefst vijf slaapkamers precies wat je zoekt! Gelegen in de geliefde wijk De Bouw in Houten, biedt deze instapklare woning alles wat je je maar kunt wensen. De afgelopen jaren is het huis met veel zorg, oog voor detail en een sterk gevoel voor stijl volledig verbouwd, je hoeft alleen nog maar je koffers uit te pakken!

De woning telt maar liefst vijf slaapkamers, een lichte en sfeervolle living aan de tuinzijde met een imposante harmonicapui die volledig open kan naar de zonnige achtertuin. Aan de voorzijde bevindt zich een moderne open keuken met strakke afwerking en veel lichtinval. De stijlvolle badkamer is uitgerust met een royale inloopdouche én een heerlijk ligbad voor een echte wellnesservaring thuis.
De fraai aangelegde achtertuin ligt op het zonnige zuiden, ideaal voor lange, ontspannen zomeravonden. Hier vind je een sfeervolle veranda, een privé-sauna en een grote schuur met handige achterom. Kortom: een huis waar comfort, luxe en buitenleven perfect samenkomen.

Duurzaam & Comfortabel:
Dit comfortabele gezinshuis is helemaal klaar voor de toekomst! Dankzij de warmtepomp, maar liefst 25 zonnepanelen, vloerverwarming op de begane grond én airco’s in alle slaapkamers woon je hier duurzaam én comfortabel.

Ligging, voorzieningen & bereikbaarheid:
In een van de meest geliefde wijken van Houten vind je deze woning.
Woonwijk De Bouw is centraal in Houten gelegen en staat bekend om de ruimtelijke en groene opzet. Alle voorzieningen liggen hier binnen handbereik! Zo ben je binnen enkele wandelminuten op winkelcentrum Castellum waar je de beschikking hebt over vele winkels en het NS-station met fietstransferium. Ook kinderdagverblijven en basisscholen bevinden zich op zeer korte afstand.
Gezien de centrale ligging zijn ook de uitvalswegen snel te bereiken (A27, A12 en A2).

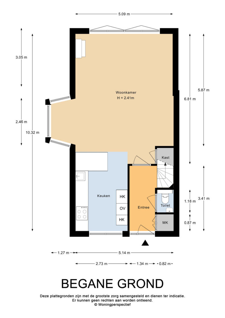
Begane grond:
Via de strakke voortuin straat bereik je de voordeur van dit fraaie hoekhuis. Je stapt binnen in een ruime hal met toegang tot de meterkast en garderobe, een modern afgewerkt toilet, de trapopgang naar de eerste verdieping én de stijlvolle living (ca. 46 m²).

Aan de voorzijde van de woning vind je de moderne open keuken (2014), een heerlijke plek voor iedere kookliefhebber. De keuken is stijlvol uitgevoerd met een kunststof werkblad, RVS spoelbak en een praktische Quooker voor direct kokend water. Dankzij de grote raampartijen valt het daglicht royaal naar binnen, wat zorgt voor een fijne, open sfeer en een mooie verbinding met buiten.
Je hebt volop opbergruimte in de kasten en lades en de keuken is uitgerust met hoogwaardige inbouwapparatuur, waaronder: een combi-oven (Pelgrim), afzuigkap (Pelgrim), vaatwasser (Miele 2022), inductie kookplaat (Pelgrim) en grote koelkast en aparte vriezer (Pelgrim).
Kortom: een stijlvolle en complete keuken waarin de echte chef zijn hart kan ophalen.

De zithoek bevindt zich aan de achterzijde van de woning en vormt samen met de keuken een prachtig geheel. De royale erker en de harmonica pui naar de tuin zorgen voor een overvloed aan daglicht en een naadloze verbinding met buiten.
De woonkamer is voorzien van een op maat gemaakt tv-meubel met geïntegreerde waterdamphaard, een echte blikvanger. Een stijlvolle deur met zwart gepoedercoate kozijnen scheidt de hal van de woonkamer en sluit perfect aan bij de moderne afwerking van het interieur. Deze zwarte details komen ook terug in de praktische trapkast, die voorzien is van een bijpassende zwarte deur. Tot slot zorgt het elektrisch bedienbare zonnescherm aan de achtergevel voor comfort tijdens zonnige dagen.

De begane grond is afgewerkt met een fraaie pvc vloer in visgraat met comfortabele vloerverwarming. Het plafond is glad gestuct voorzien van een sierrand.

Tuin op het zuiden: een groene oase met wellnessgevoel
De brede, zonnige achtertuin is met veel zorg en sfeer aangelegd. Denk aan een groene erfafscheiding met hedera en meerdere fijne zitplekken. De royale schuur biedt volop bergruimte en grenst direct aan een luxe wellnesshoek met sauna, verwarmde buitendouche en een overdekte veranda. Deze is voorzien van een glazen schuifwand, elektrisch bedienbaar windscherm, heater én een gezellige gashaardtafel.
De perfecte plek om tot in de late uurtjes te genieten van het buitenleven.
Dankzij de gunstige ligging op het zuiden profiteer je hier van volop zon. Daarnaast is de tuin voorzien van meerdere elektra punten en een buitenkraan (voor en achter).

Via de poort aan de zijkant loop je zo naar de voorzijde van het huis, of je bereikt via de schuur eenvoudig de achtergelegen parkeerplaats.

Eerste verdieping:
Via de trap in de hal bereik je de overloop op de eerste verdieping.
Aan de achterzijde bevinden zich twee ruime slaapkamers (ca. 7m² en ca. 9m²), beide uitgerust met een eigen Daikin airco unit en de badkamer aan de voorzijde.

Als extra is er een separate walk-in-closet gerealiseerd die zorgt voor volop kastruimte en een opgeruimd geheel.

Badkamer:
De badkamer (ca. 10m²) is door de huidige bewoners vernieuwd met oog voor detail, comfort en luxe.
Het geheel ademt een warme, hotel chique sfeer dankzij het gebruik van natuurlijke tinten, hoogwaardige materialen en sfeervolle inbouwspots.
Een echte eyecatcher is het vrijstaande designbad met elegante nis erboven. De royale inloopdouche is voorzien van dubbele regen- én handdouches en heeft een praktische ingebouwde nis voor shampoo en andere badproducten. Daarnaast is er een modern wastafelmeubel dubbele wasbak, spiegel en verlichting, een tweede wandcloset met stijlvol geïntegreerd ophangsysteem voor de toiletrol en een strakke designradiator. De grote raampartij met Frans balkon en meerdere ramen zorgen voor een zee aan daglicht en natuurlijke ventilatie.
De vloerverwarming maakt het comfort compleet. Hier begin en eindig je elke dag in luxe.

Tweede verdieping: verrassend ruim en compleet uitgerust
Via de trap bereik je de tweede verdieping, die dankzij de hoge kapconstructie opvallend veel ruimte en mogelijkheden biedt. Hier bevinden zich drie slaapkamers (ca. 10m² , ca. 10m² en ca. 5m²), verdeeld over de voor- en achterzijde van de woning. Alle slaapkamers zijn voorzien van een eigen airco-installatie (Daikin), waardoor het comfort in alle seizoenen gegarandeerd is. Daarnaast beschikken de kamers over extra bergruimte achter knieschotten met praktische schuifwanden.

De separate wasruimte (ca. 4m²) is efficiënt ingedeeld met aansluitpunten voor de wasmachine en droger, de verdeler voor de zonnepanelen, de mechanische ventilatie-unit én de all electric warmtepomp (Nibe, 2023). Dankzij het kunststof dakraam is deze ruimte lekker licht en biedt het volop plek voor extra opslag.

Tot slot beschikt deze verdieping over een ruime bergvliering, ideaal voor koffers, seizoensspullen of andere opbergbehoeften.

De verdiepingen zijn voorzien van een doorlopende laminaatvloer.

Bijzonderheden:
– Ruim en modern in-stap-klaar hoekhuis met maar liefst vijf slaapkamers.
– Gelegen in een geliefde wijk de Bouw in Houten op een ruim perceel van 190m2.
– Zonnige achtertuin op het zuiden met fraaie veranda, perfect voor lange zomeravonden.
– Royale stijlvolle schuur met aangrenzende veranda (2018) en sauna (2020).
– Lichte en ruime uitgebouwde living met erker en harmonicadeuren deuren naar de tuin.
– Moderne badkamer (2023) en keuken (2014) en toilet.
– Alle slaapkamers zijn uitgerust met een eigen airco unit (Daikin).
– Elektrisch rolluiken voor de raampartijen op de eerste verdieping aan de achterzijde.
– Schilderwerk buiten 2024 door erkende schilder.
– De woning is v.v. mechanische ventilatie (2023) in de keuken, toilet en badkamer.
– Veel extra bergruimte door een ruime vliering.
– De woning is voorzien van 24 zonnepanelen met een opbrengst van 390 wp per paneel.
– Verwarming en warmwater door middel van warmtepomp (Nibe 2023 all electric).
– Definitief energielabel: A++++
– Voldoende (gratis) parkeergelegenheid voor de deur.
– Woonoppervlakte van deze woning is officieel ingemeten volgens BBMI (Branche Brede Meet Instructie, afgeleide van NEN 2580).

  • Vraagprijs
    € 650.000,- k.k.
  • Soort woning
    eengezinswoning
  • Bouwjaar
    2000
  • Woonoppervlakte
    122 m2
  • Perceeloppervlakte
    190 m2
  • Inhoud
    436 m3
  • Aantal kamers
    6
  • Aantal slaapkamers
    5
  • Energielabel
    A++++

Plattegronden

Kaart