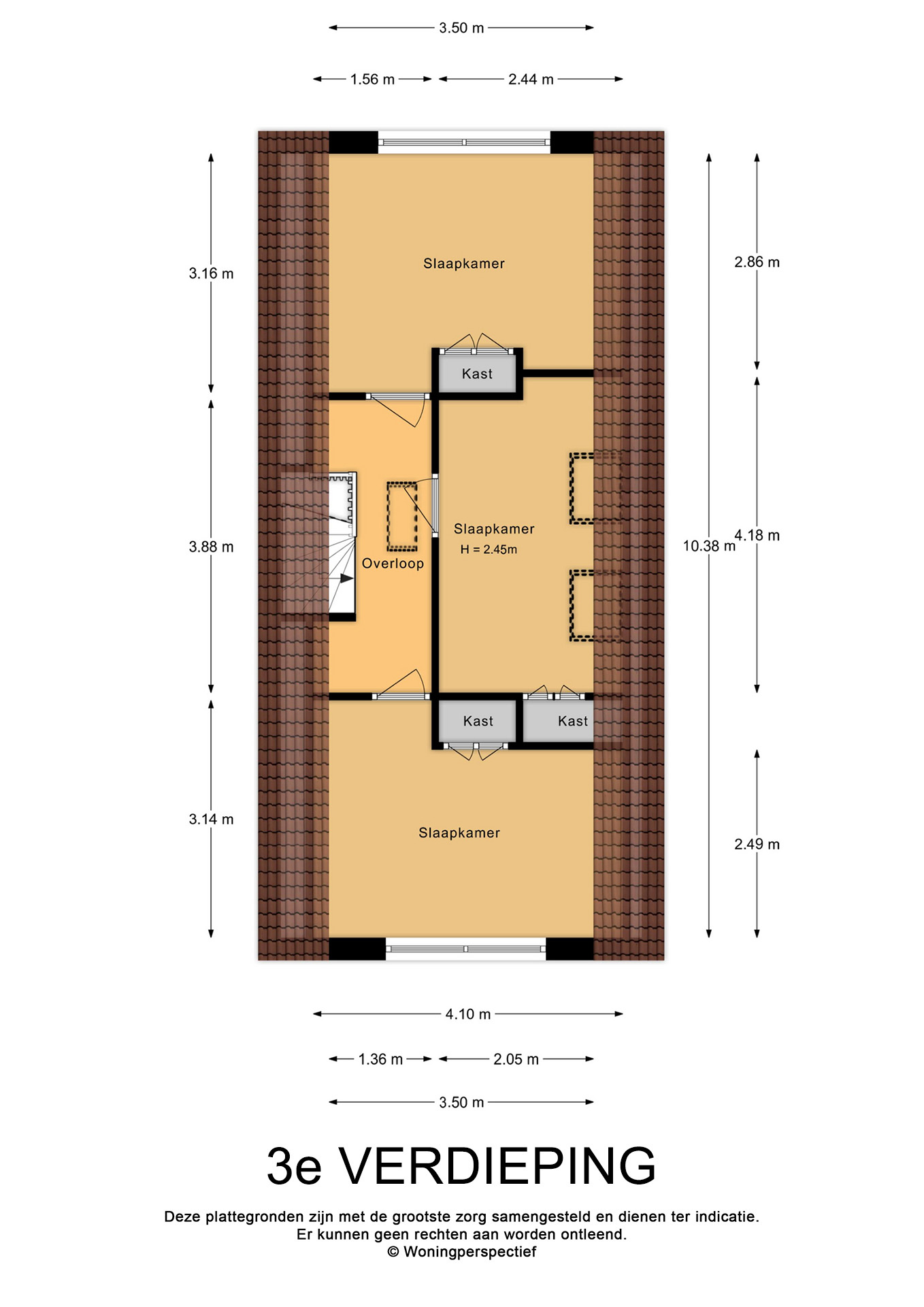
Nieuwegein – Lensveltlaan 29 – Plattegrond 4