Home
Aanbod
Nieuws
Verkoop
Aankoop
Taxatie
Hypotheek
Over ons
Reviews
Contact
030 799 10 70
Home
Aanbod
Nieuws
Verkoop
Aankoop
Taxatie
Hypotheek
Over ons
Reviews
Contact
030 799 10 70
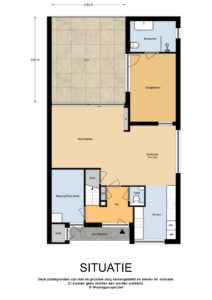
Nieuwegein – Ernest Claeshove 19 – Plattegrond
Previous Story
Nieuwegein – Ernest Claeshove 19
Met het bezoeken van onze website ga je akkoord met het gebruik van cookies. Lees hierover meer op onze privacy pagina.
Accepteren
Lees meer